Vademecum Scarico Condense N. 5 | UNI 7129-5:2015
| ID 8095 | | Visite: 69976 | Documenti impianti riservati | Permalink: https://www.certifico.com/id/8095 |
Vademecum Scarico Condense N. 5 | UNI 7129-5:2015
ID 8095 | 01.04.2019
Il presente documento (N. 5 della serie di 5 documenti previsti) illustra, con il supporto di immagini, i sistemi per lo scarico delle condense degli Impianti a gas per uso domestico e similare alimentati da rete di distribuzione, in base a quanto indicato nella norma UNI 7129:5:2015.
La norma si applica agli impianti domestici e similari per l'utilizzazione dei gas combustibili appartenenti alla I, II e III famiglia secondo la UNI EN 437 ed alimentati da rete di distribuzione di cui alla UNI 9165 e UNI 10682.
La norma definisce le modalità per la raccolta e lo scarico delle condense prodotte dai generatori di calore a condensazione e a bassa temperatura e quelle che si formano nei sistemi di evacuazione dei prodotti della combustione.
La norma si applica ai sistemi di raccolta e scarico delle condense al servizio degli impianti domestici e similari dotati di apparecchi a condensazione o apparecchi a bassa temperatura di singola portata termica nominale massima non maggiore di 35 kW o di sistemi di evacuazione dei prodotti della combustione funzionanti ad umido.
La presente norma fornisce in oltre indicazioni per ii controllo dei sistemi di raccolta e scarico delle condense.
Il presente documento è elaborato sulla norma UNI 7129-5:2015 (Edizione 2015).
UNI 7129-5:2015 la norma sostituisce la UNI 11071:2003
1. Vademecum Impianti a gas uso domestico N. 1 | UNI 7129-1:2015
2. Vademecum Impianti a gas uso domestico N. 2 | UNI 7129-2:2015
3. Vademecum Impianti a gas uso domestico N. 3 | UNI 7129-3:2015
4. Vademecum Impianti a gas uso domestico N. 4 | UNI 7129-4:2015
5. Vademecum Impianti a gas uso domestico N. 5 | UNI 7129-5:2015
________
Attenzione: documento elaborato su norma UNI 7129:5:2015, possibili riferimenti ad altre norme riportate non più in vigore
Excursus
Sistema di scarico delle condense
Lo scarico delle condense deve avvenire nel rispetto della legislazione vigente in materia.
Gli apparecchi a condensazione devono sempre essere collegati all'impianto di scarico delle condense.
Poichè il sistema di evacuazione dei prodotti della combustione asservito a tali apparecchi si trova ad operare ad umido, è necessario realizzare un sistema di scarico delle condense allacciato a tale sistema, a meno che il fabbricante dell'apparecchio dichiari l'idoneità dello stesso a ricevere anche i condensati provenienti dal sistema di evacuazione dei prodotti della combustione.
In caso sia utilizzata una curva a 90° si deve verificare che l'apparecchio sia idoneo a ricevere e smaltire le condense dei prodotti della combustione e/o le acque meteoriche eventualmente provenienti dal sistema di evacuazione dei prodotti della combustione, per mezzo del sifone di caldaia o di un raccogli condensa presente sul condotto di evacuazione dei prodotti della combustione.
Nei casi in cui il sistema di evacuazione dei prodotti della combustione non possa scaricare completamente i condensati nell'apparecchio (esempio in presenza di una camera di raccolta alla base del camino/cannafumaria/condotto intubato) è necessario realizzare un ulteriore sistema di scarico delle condense alla sua base, dotato di sifone.
In questo caso il sifone deve avere un battente almeno due volte maggiore rispetto alla massima prevalenza del ventilatore dell'apparecchio, in ogni caso non minore di 100 mm (figura 3).
E' inoltre necessario prevedere ii sistema di scarico della condensa alla base del sistema di evacuazione dei prodotti della combustione nei seguenti casi:
- sistemi di evacuazione dei prodotti della combustione operanti ad umido al servizio di apparecchi non a condensazione.
In ogni caso deve essere evitato il ristagno delle condense nel sistema di evacuazione dei prodotti della combustione, ad eccezione del battente di liquido presente nell'eventuale sifone di scarico del sistema stesso.
L'impianto di scarico della condensa deve essere dimensionato ed installato in modo da garantire la corretta evacuazione delle condense prodotte dall'apparecchio e/o dal sistema di evacuazione dei prodotti della combustione in ogni condizione di funzionamento.
Lo scarico delle condense deve essere realizzato in modo tale da impedire la fuoriuscita dei prodotti gassosi della combustione in ambiente o in fogna.
...
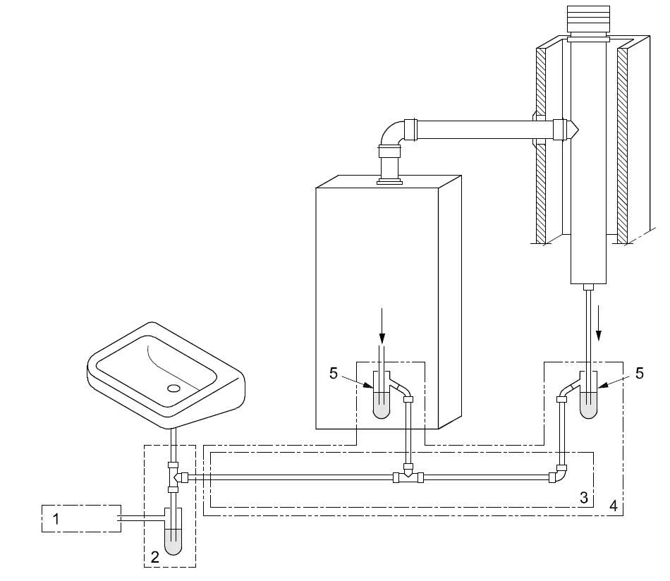
Esempio di sistema di scarico delle condense
Legenda
1 impianto di smaltimento dei reflui o altro sistema di raccolta/trattamento
2 Dispositivo "A" (vedere figura 5)
3 Impianto di scarico delle condense
4 Sistema di scarico delle condense
5 Sifone
...
Posa in opera
Il sistema di scarico delle condense deve:
- essere realizzato avendo l'accortezza di impedire l'utilizzo delle condense prodotte da parte dell'utenza;
- essere dimensionato e installato seguendo, ove esistenti, le indicazioni fornite dal fabbricante (dell’apparecchio o del sistema di evacuazione dei prodotti della combustione);
- essere dotato di una disgiunzione ispezionabile, mediante sifone o altro dispositivo equivalente, tra l'apparecchio e/o il sistema di evacuazione dei prodotti della combustione e l'impianto di scarico delle condense:
- consentire il corretto deflusso degli scarichi liquidi dell'apparecchio e/o del sistema di evacuazione dei prodotti della combustione prevenendo eventuali perdite;
- essere installato in modo tale da evitare ii congelamento dell'eventuale liquido in esso contenuto nelle condizioni di funzionamento previste.
Il sistema di scarico delle condense può essere collegato ad un impianto di smaltimento reflui domestici.
In tal caso, deve essere utilizzato un opportuno sifone o dispositivo equivalente atto a prevenire ii ritorno di esalazioni dalla rete fognaria (dispositivo A nelle figure 1, 2a, 2b, 3 e 4).
Alcuni esempi di tale dispositivo sono rappresentati nella figura 5.
Figura 5 Esempi di configurazione del dispositivo di collegamento all'impianto di smaltimento dei reflui domestici
[...segue in allegato]
...
Per il trattamento delle condense si indicano i seguenti casi:
Nel caso di installazioni in edifici ad uso abitativo o prevalentemente abitativo, qualora gli impianti siano asserviti a canne collettive, non si rende necessaria la neutralizzazione.
In tutti i casi, per i quali lo scarico delle condense non avviene nel sistema di scarico delle acque reflue, e necessaria l'installazione di un neutralizzatore di condense che garantisca il rispetto dei parametri previsti dalla legislazione vigente.
...
segue in allegato
...
Indice
Premessa
1. Sistema di scarico delle condense
2. Materiali
3. Posa in opera
4. Controllo del sistema di scarico delle condense
5. Gestione delle condense
6. Dimensionamento dell'impianto di scarico delle condense
7. Quantitativo massimo di condensa prodotta dagli apparecchi a condensazione
Fonti
________
Certifico Srl - IT | Rev. 0.0 2019
©Copia autorizzata Abbonati
ID 8095 | 01.04.2019
Articoli correlati:
| Descrizione | Livello | Dimensione | Downloads | |
|---|---|---|---|---|
| Vademecum illustrato Scarico condense UNI 7129-5 2015.pdf Certifico Srl - Rev. 0.0 2019 |
323 kB | 417 |




















