Decreto Legislativo 9 luglio 2024 n. 100
| ID 22224 | | Visite: 1313 | Direttiva RED | Permalink: https://www.certifico.com/id/22224 |
Decreto Legislativo 9 luglio 2024 n. 100 / Modifica decreto RED - Dispositivi di ricarica
ID 22224 | 10.07.2024
Decreto Legislativo 9 luglio 2024 n. 100 Disposizioni per l'adeguamento della normativa nazionale all'articolo 138 del regolamento (UE) 2018/1139 del Parlamento europeo e del Consiglio del 4 luglio 2018 e alla direttiva (UE) 2022/2380 del Parlamento europeo e del Consiglio del 23 novembre 2022 che modificano la direttiva 2014/53/UE, concernente l'armonizzazione delle legislazioni degli Stati membri relative alla messa a disposizione sul mercato di apparecchiature radio.
(GU n.160 del 10.07.2024)
Entrata in vigore: 11.07.2024
_________
Art. 1. Modifiche al decreto legislativo 22 giugno 2016, n. 128
Art. 2. Modifiche al decreto del Ministro dello sviluppo economico 7 aprile 2017, n. 101
Art. 3. Disposizioni transitorie
1. Le disposizioni di cui all’articolo 1, comma 1, lettere a), b), c), d), e), f), g), h), i), e m) si applicano a decorrere dal 28 dicembre 2024 per le categorie o classi di apparecchiature radio di cui alla parte I, punti da 1.1. a 1.12. dell’allegato I bis di cui all’allegato A e dal 28 aprile 2026 per le categorie o classi di apparecchiature radio di cui alla parte I, punto 1.13. dell’allegato I bis di cui all’allegato A.
Art. 4. Clausola di invarianza finanziaria
Art. 5. Entrata in vigore
1. Il presente decreto entra in vigore il giorno successivo a quello della sua pubblicazione nella Gazzetta Ufficiale della Repubblica italiana.
...
ALLEGATO A
«ALLEGATO I bis
SPECIFICHE E INFORMAZIONI RELATIVE ALLA RICARICA APPLICABILI A DETERMINATE CATEGORIE O CLASSI DI APPARECCHIATURE RADIO
PARTE I
SPECIFICHE RELATIVE ALLE CAPACITÀ DI RICARICA
1. I requisiti di cui ai punti 2 e 3 della presente parte si applicano alle seguenti categorie o classi di apparecchiature radio:
1.1. i telefoni cellulari portatili;
1.2. i tablet;
1.3. le fotocamere digitali, ad eccezione di quelle progettate esclusivamente per il settore audiovisivo o per il settore della sicurezza e sorveglianza;
1.4. le cuffie;
1.5. le cuffie microfono;
1.6. le console portatili per videogiochi;
1.7. gli altoparlanti portatili;
1.8. i lettori elettronici;
1.9. le tastiere;
1.10. i mouse;
1.11. i sistemi di navigazione portatili;
1.12. gli auricolari;
1.13. i laptop (l’apparecchiatura radio interessata è qualsiasi computer portatile, tra cui laptop, notebook, pc ultraportatili, dispositivi ibridi o convertibili e netbook).
2. Nella misura in cui possono essere ricaricate mediante cavo, le categorie o classi di apparecchiature radio di cui al punto 1 della presente parte:
2.1. devono essere dotate di una presa USB tipo C, come descritto nella norma EN IEC 62680-1- 3:2022 “Interfacce del Bus Seriale Universale (Universal Serial Bus) per dati e alimentazione - parte 1-3: Componenti comuni - Specifica del cavo e del connettore USB tipo C®”, e la presa deve rimanere accessibile e operativa in ogni momento;
2.2. devono poter essere ricaricate con cavi conformi alla norma EN IEC 62680-1-3:2022 “Interfacce del Bus Seriale Universale (Universal Serial Bus) per dati e alimentazione - parte 1-3: Componenti comuni - Specifica del cavo e del connettore USB tipo C®”.
3. Nella misura in cui possono essere ricaricate mediante cavo e con tensione superiore a 5 volt, corrente superiore a 3 ampère o potenza superiore a 15 watt, le categorie o classi di apparecchiature radio di cui al punto 1 della presente parte devono:
3.1. integrare il protocollo USB Power Delivery, come descritto nella norma EN IEC 62680-1-2:2022 “Interfacce per bus universali seriali per dati e alimentazione elettrica - parte 1-2: Componenti comuni - Specifiche di alimentazione tramite USB”;
3.2. garantire che qualsiasi protocollo di ricarica supplementare consenta la piena funzionalità del protocollo USB Power Delivery di cui al punto 3.1, a prescindere dal dispositivo di ricarica utilizzato.
PARTE II
INFORMAZIONI SULLE SPECIFICHE RELATIVE ALLE CAPACITÀ DI RICARICA E AI DISPOSITIVI DI RICARICA COMPATIBILI
Nel caso di apparecchiature radio che rientrano nell’ambito di applicazione dell’articolo 3, comma 4- bis, le seguenti informazioni devono essere indicate conformemente ai requisiti di cui all’articolo 10, comma 8-bis, e possono essere messe a disposizione anche mediante codici QR o soluzioni elettroniche analoghe:
a) nel caso di tutte le categorie o classi di apparecchiature radio soggette ai requisiti di cui alla parte I, una descrizione dei requisiti di potenza dei dispositivi di ricarica con cavo che possono essere utilizzati con tale apparecchiatura radio, compresa la potenza minima richiesta per caricare l’apparecchiatura radio, e la potenza massima richiesta per caricare l’apparecchiatura radio alla massima velocità di ricarica espressa in watt, mediante l’apposizione del testo: “La potenza fornita dal caricabatteria deve essere tra min [xx] watt richiesta dall’apparecchiatura radio e max [yy] watt per raggiungere la massima velocità di ricarica”. Il numero di watt deve esprimere, rispettivamente, la potenza minima richiesta dall’apparecchiatura radio e la potenza massima richiesta dall’apparecchiatura radio per raggiungere la massima velocità di ricarica;
b) nel caso di apparecchiature radio soggette ai requisiti di cui alla parte I, punto 3, una descrizione delle specifiche relative alle capacità di ricarica dell’apparecchiatura radio, nella misura in cui essa può essere ricaricata mediante cavo e con tensione superiore a 5 volt o corrente superiore a 3 ampère o potenza superiore a 15 watt, compresa l’indicazione che l’apparecchiatura radio supporta il protocollo di ricarica USB Power Delivery mediante l’apposizione del testo “Ricarica rapida USB PD” e l’indicazione di qualsiasi altro protocollo di ricarica supportato mediante l’apposizione del relativo nome in formato di testo.
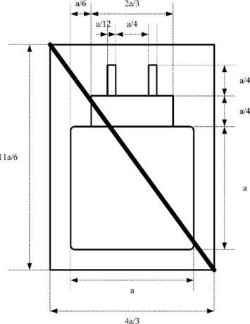
PARTE III
PITTOGRAMMA CHE INDICA SE L’APPARECCHIATURA RADIO INCLUDE UN DISPOSITIVO DI RICARICA
1. Il pittogramma deve presentarsi nei formati seguenti.
1.1. Se l’apparecchiatura radio include un dispositivo di ricarica:
1.2. Se l’apparecchiatura radio non include alcun dispositivo di ricarica:
2. Il pittogramma può variare nell’aspetto (ad esempio può essere di colori diversi, avere forma vuota o piena, linee di spessore differente), purché rimanga visibile e leggibile. In caso di riduzione o di ingrandimento del pittogramma, devono essere mantenute le proporzioni indicate nei simboli di cui al punto 1 della presente parte. La dimensione “a” di cui al punto 1 della presente parte deve essere superiore o pari a 7 mm, indipendentemente dalla variazione.
PARTE IV
CONTENUTO E FORMATO DELL’ETICHETTA
1. L’etichetta deve presentare il formato seguente:
2. Le lettere “XX” sono sostituite dalla cifra corrispondente alla potenza minima richiesta dall’apparecchiatura radio per la ricarica, che determina la potenza minima che un dispositivo di ricarica deve fornire per caricare l’apparecchiatura radio. Le lettere “YY” sono sostituite dalla cifra corrispondente alla potenza massima richiesta dall’apparecchiatura radio per raggiungere la massima velocità di ricarica, che determina la potenza minima che un dispositivo di ricarica deve fornire per raggiungere tale massima velocità di ricarica. La dicitura “USB PD” (USB Power Delivery) figura se l’apparecchiatura radio supporta tale protocollo di comunicazione per la ricarica. “USB PD” è un protocollo che negozia la fornitura più rapida di corrente dal dispositivo di ricarica all’apparecchiatura radio senza abbreviare la durata di vita della batteria.
3. L’etichetta può variare nell’aspetto (ad esempio può essere di colori diversi, avere forma vuota o piena, linee di spessore differente), purché rimanga visibile e leggibile. In caso di riduzione o di ingrandimento dell’etichetta, devono essere mantenute le proporzioni indicate nel simbolo di cui al punto 1 della presente parte. La dimensione “a” di cui al punto 1 della presente parte deve essere superiore o pari a 7 mm, indipendentemente dalla variazione.
...
Collegati
Nuova Direttiva R&TTE 2014/53/UE (Direttiva RED)
Direttiva (UE) 2022/2380
Decreto Legislativo 22 giugno 2016 n. 128
Decreto 7 aprile 2017 n. 101
Tags: Marcatura CE Direttiva RED
























