UNI EN ISO 3164:2025 / Macchine movimento terra - DLV strutture di protezione - Note
| ID 23861 | | Visite: 1718 | Documenti Riservati Direttiva macchine | Permalink: https://www.certifico.com/id/23861 |
UNI EN ISO 3164:2025 / Macchine movimento terra - DLV strutture di protezione - Note
ID 23861 | 24.04.2025 / Note complete in allegato
Pubblicata la norma UNI EN ISO 3164:2025 “Macchine movimento terra - Valutazioni di laboratorio delle strutture di protezione - Specifiche per il volume limite di deformazione”, in vigore dal 20 marzo 2025.
La norma EN ISO 3164:2013/A1:2024 (recepita in UNI EN ISO 3164:2025) è armonizzata per la Direttiva macchine 2006/42/CE (vedi tutte le norme armonizzate) e sua corretta applicazione è Presunzione di conformità per i relativi RESS elencati in allegato ZA della stessa.
In base a quanto stabilito dalla Direttiva macchine 2006/42/CE (Direttiva macchine) e dal Regolamento (UE) 2023/1230 (Regolamento macchine) quando, per una macchina semovente con conducente, operatore/i o altra/e persona/e trasportati esiste il rischio di ribaltamento essa deve essere progettata e munita di una struttura di protezione contro tale rischio (ROPS / roll-over protective structure) mentre, quando esistono rischi dovuti alla caduta di oggetti o di materiali, essa deve essere progettata e costruita in modo essa deve essere progettata e costruita, se le sue dimensioni lo consentono, di una struttura di protezione contro tale rischio (FOPS / Falling Object Protective Structure).
Tali strutture (ROPS/FOPS) devono garantire alla persona o alle persone trasportate un adeguato volume limite di deformazione (DLV).
Al fine di verificare che la struttura soddisfi i requisiti di legge, anche per questo dispositivo, il fabbricante o il deve effettuare, o far effettuare, prove appropriate per ciascun tipo di struttura.
La ROPS/FOPS deve:
- resistere a forze;
- assorbire energia;
- deformarsi al limite del DLV.
Le prove a cui devono essere sottoposte le ROPS/FOPS in accordo con le norme di riferimento devono essere effettuate per ciascun tipo di ROPS/FOPS (prove di tipo).
Le ROPS e FOPS, sono componenti di sicurezza ai sensi della Direttiva macchine 2006/42/CE (Allegato V) e rientrano anche nell’Allegato IV (categorie di macchine per le quali va applicata una delle procedure di cui all'articolo 12, paragrafi 3 e 4).
ALLEGATO I
Requisiti essenziali di sicurezza e di tutela della salute relativi alla progettazione e alla costruzione delle macchine
3. REQUISITI ESSENZIALI SUPPLEMENTARI DI SICUREZZA E DI TUTELA DELLA SALUTE PER OVVIARE AI PERICOLI DOVUTI ALLA MOBILITÀ DELLE MACCHINE
3.4. MISURE DI PROTEZIONE CONTRO I PERICOLI MECCANICI
3.4.3. Ribaltamento o rovesciamento laterale
Quando per una macchina semovente con conducente, operatore/i o altra/e persona/e trasportati esiste il rischio di ribaltamento o rovesciamento laterale, essa deve essere munita di una struttura di protezione appropriata, se ciò accresce i rischi.
Detta struttura deve essere tale che, in caso di ribaltamento o rovesciamento laterale, garantisca alle persone trasportate un adeguato volume limite di deformazione.
Al fine di verificare che la struttura soddisfi il requisito di cui al secondo comma, il fabbricante o il suo mandatario deve effettuare, o far effettuare, prove appropriate per ciascun tipo di struttura.
3.4.4. Caduta di oggetti
Quando per una macchina semovente con conducente, operatore/i altra/e o persona/e trasportati esistono rischi connessi con cadute di oggetti o di materiali, essa deve essere progettata e costruita in modo da tenere conto di tali rischi; essa deve inoltre essere munita, se le sue dimensioni lo consentono, di una struttura di protezione appropriata.
Detta struttura deve esser tale che in caso di cadute di oggetti o di materiali sia garantito alla persona o alle persone trasportate un adeguato volume limite di deformazione.
Al fine di verificare che la struttura soddisfi il requisito di cui al secondo comma, il fabbricante o il suo mandatario deve effettuare, o far effettuare, prove appropriate per ciascun tipo di struttura.
________
Le ROPS e FOPS, sono componenti di sicurezza ai sensi della Regolamento (UE) 2023/1230 (Allegato II) e rientrano anche nell’Allegato I (categorie di macchine o prodotti correlati per le quali va applicata una delle procedure di cui all'articolo 25, paragrafo 3).
ALLEGATO III
Requisiti essenziali di sicurezza e di tutela della salute relativi alla progettazione e alla costruzione di macchine o prodotti correlati
3. REQUISITI ESSENZIALI SUPPLEMENTARI DI SICUREZZA E DI TUTELA DELLA SALUTE PER OVVIARE AI RISCHI DOVUTI ALLA MOBILITÀ DELLE MACCHINE O DEI PRODOTTI CORRELATI
3.4.3. Ribaltamento o rovesciamento laterale
Quando per una macchina semovente con conducente, operatore/i o altra/e persona/e trasportati esiste il rischio di ribaltamento o rovesciamento laterale, tale macchina deve essere munita di una struttura di protezione appropriata, a meno che ciò non accresca i rischi.
Detta struttura deve essere tale da garantire alle persone trasportate, in caso di ribaltamento o rovesciamento laterale, un adeguato volume limite di deformazione.
Al fine di verificare che la struttura soddisfi il requisito di cui al secondo comma, il fabbricante deve effettuare, o far effettuare, prove appropriate per ciascun tipo di struttura.
3.4.4. Caduta di oggetti
Quando per una macchina semovente con conducente, operatore/i altra/e o persona/e trasportati esistono rischi dovuti alla caduta di oggetti o di materiali, essa deve essere progettata e costruita in modo da tenere conto di tali rischi; essa deve inoltre essere munita, se le sue dimensioni lo consentono, di una struttura di protezione appropriata.
Detta struttura deve esser tale che in caso di caduta di oggetti o di materiali sia garantito alla persona o alle persone trasportate un adeguato volume limite di deformazione.
Al fine di verificare che la struttura soddisfi il requisito di cui al secondo comma, il fabbricante deve effettuare, o far effettuare, prove appropriate per ciascun tipo di struttura.
[...]
Estratto (EN)
EN ISO 3164:2013, EN ISO 3164:2013/A1:2024
Earth-moving machinery - Laboratory evaluations of protective structures - Specifications for deflection-limiting volume
_______
Annex ZA (informative)
Relationship between this European Standard and the essential requirements of Directive 2006/42/EC aimed to be covered This European Standard has been prepared under a Commission’s standardization request “M/396 Mandate to CEN and CENELEC for Standardisation in the field of machinery" to provide one voluntary means of conforming to essential requirements of Directive 2006/42/EC of the European Parliament and of the Council of 17 May 2006 on machinery, and amending Directive 95/16/EC (recast).
Once this standard is cited in the Official Journal of the European Union under that Directive, compliance with the normative clauses of this standard given in Table ZA.1 confers, within the limits of the scope of this standard, a presumption of conformity with the corresponding essential requirements of that Directive, and associated EFTA regulations.
Table ZA.1 - Correspondence between this European Standard and Annex I of Directive 2006/42/EC
[...]
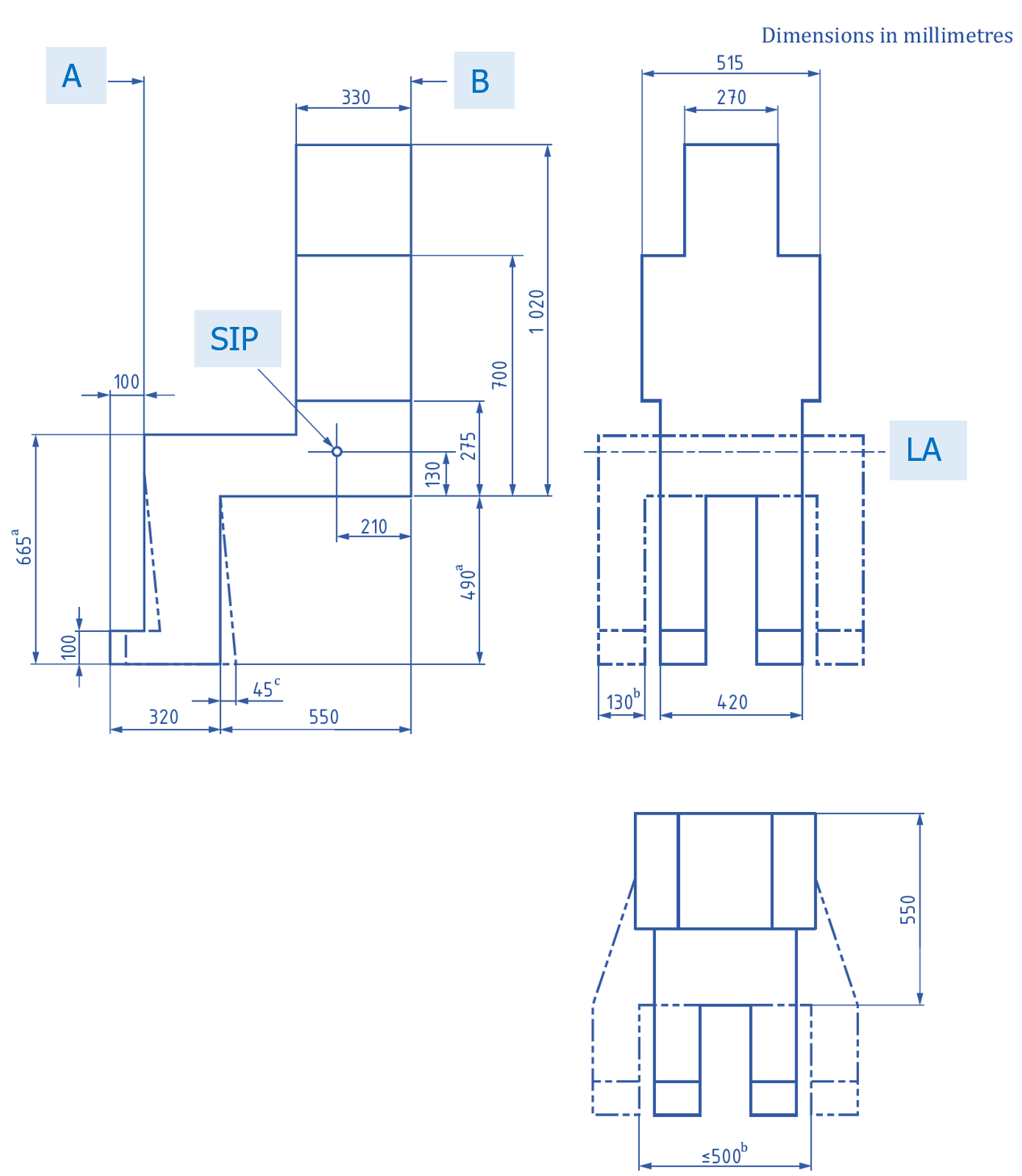
5 Location of DLV
5.1 The DLV shall be located using the SIP, as defined in ISO 5353, as the reference point (see Figures 1 and 2).
5.2 For machines which have multiple seat locations and therefore multiple SIPs (see ISO 5353:1995, 5.3.3), the SIP used by the operator to move the machine in the travel mode shall be used.
5.3 The DLV shall be positioned so that the locating axis (LA) shown in Figure 1 passes through the SIP location as determined in 5.2. The DLV shall be centred transversely in the seat location with its principal axes horizontal and vertical (axes X′ and Z′ as defined in ISO 5353:1995, Figure 2).
5.4 The location of the LA of the DLV shall remain coincidental with the SIP even though that line can move during any or all of the laboratory loadings.
NOTE Machine controls and their components normally positioned in the DLV are not considered to violate the DLV.
Key
A front boundary plane
B rear boundary plane
LA locating axis
SIP seat index point
a May be reduced to avoid interference with floor plates.
b Machine parts or controls can require additional separation of the feet and legs of the DLV.
c Feet may move 45 mm rearwards.
Figure 1 - Orthogonal DLV dimensions
[...] Segue in allegato
Certifico Srl - IT | Rev. 0.0 2025
Copia autorizzata Abbonati
Collegati
Direttiva 2006/42/CE
Strutture ROPS / FOPS / TOPS / FOGS
UNI EN ISO 3164:2025 / Macchine movimento terra - DLV strutture di protezione
| Descrizione | Livello | Dimensione | Downloads | |
|---|---|---|---|---|
| UNI EN ISO 3164 2025 DLV strutture di protezione - Note Rev. 0.0 2025.pdf Certifico Srl - Rev. 0.0 2025 |
590 kB | 49 |


















