CEI 23-50 Prescrizioni spine e prese usi domestici/similari e fogli di normalizzazione
| ID 19135 | | Visite: 19033 | Documenti impianti riservati | Permalink: https://www.certifico.com/id/19135 |
CEI 23-50 / Prescrizioni generali spine e prese per usi domestici e similari e fogli di normalizzazione
ID 19135 | Rev. 1.0 del 18.10.2023 / Documento completo allegato
Documento con esempi sulla norma di riferimento CEI 23-50 prescrizioni generali delle spine e prese per usi domestici e similari con fogli normalizzazione. Relazione con le norme CEI 23-57 relativa agli adattatori e CEI EN 50075 spine non smontabili bipolari 2,5 A 250 V per apparecchi di classe II. Riportate tutte le Varianti alla data. Estratto riportato della CEI 23-50 congiunto con le modiche apportate dalle Varianti V1, V2, V3, V3/EC1, V4 e V4/EC1. Note CEI 23-151 Adattatori in salita.
Una normalizzazione Europea, nonostante l’utilizzo comune (almeno per i principali paesi come Germania, Francia, Spagna) nel “corpo normativo” nazionale del documento IEC 60884-1 tenendo conto delle peculiarità nazionali, non avverrà in tempi brevi, come evidenziato nel documento “REFIT Platform Opinion on the submission by a citizen on Plugs and Sockets, Submission XII.24.a by a citizen (LtL 736) date of adoption 21/09/2017, edito dalla Commissione UE.
REFIT fa parte dell’iniziativa “Legiferare meglio” Risoluzione Parlamento europeo del 7 luglio 2022 della Commissione (GU C 47 del 7.2.2023) e assicura che la legislazione dell’UE offra i benefici previsti ai cittadini, alle imprese e alla società, eliminando nel contempo la burocrazia e riducendo i costi. Un altro obiettivo è semplificare la legislazione europea e renderla più comprensibile.
Plugs and socket-outlets for household and similar purposes - Part 1: General requirements
DATA PUBBLICAZIONE 2022-08
IEC 60884-1:2022 applies to plugs and fixed or portable socket-outlets for AC only, with or without earthing contact, with a rated voltage greater than 50 V but not exceeding 440 V and a rated current not exceeding 32 A, intended for household and similar purposes, either indoors or outdoors.
Compatible plugs and socket-outlets, when combined, form a plug and socket-outlet system. Standardized systems used around the world are reported in IEC/TR 60083.
The rated current is limited to 16 A maximum for accessories provided with screwless-type terminals.
This fourth edition cancels and replaces the third edition published in 2002, Amendment 1:2006 and Amendment 2:2013. This edition constitutes a technical revision.
This edition includes the following significant technical changes with respect to the previous edition:
a) plugs and socket-outlets incorporating pilot lights;
b) crimped connections in accessories;
c) insulation piercing terminals (IPT);
d) accessories to be used with American Wire Gauge (AWG) cables;
e) accessories used in T° below −5 °C down to and including −45 °C;
f) accessories used in T° above +40 °C up to and including +70 °C;
g) plugs and socket-outlets for high load (HL);
h) clarification of some definitions;
i) durability of markings test;
j) introduction of thermal monitoring in the plug;
k) requirements for shutters in portable socket-outlets;
l) test walls for the verification of ingress of water;
m) rewriting of the temperature rise clause.
CEI 23-50
CEI 23-50
Spine e prese per usi domestici e similari
Parte 1: Prescrizioni generali
DATA PUBBLICAZIONE: 2007-03
La presente Norma si applica alle spine, alle prese fisse o mobili ed ai cordoni prolungatori per sola corrente alternata, con o senza contatto di terra, con tensione nominale superiore a 50 V, ma non superiore a 440 V e con corrente nominale non superiore a 32 A, destinate agli usi domestici e similari sia all’interno sia all’esterno. La corrente nominale è limitata ad un massimo di 16 A per le prese fisse con morsetti senza vite.
La presente Norma si applica anche alle spine collegate ai cordoni per connettore, alle spine ed alle prese mobili collegate ai cordoni prolungatori. Essa si applica inoltre alle spine ed alle prese che sono componenti di un apparecchio utilizzatore, a meno che non sia diversamente specificato nelle relative Norme dell’apparecchio utilizzatore. In particolare, la presente Norma si applica agli adattatori con le prescrizioni aggiuntive della Norma CEI 23-57.
La presente Norma si applica anche alle scatole per l’installazione di apparecchi il cui involucro è parte integrante degli stessi. Prescrizioni per le scatole da incasso e per le scatole che non sono parte integrante dell’apparecchio sono contenute nella Norma CEI EN 60670-1.
La presente Norma non si applica a: spine non smontabili bipolari 2,5 A 250 V per apparecchi di classe II, le prescrizioni delle quali contenute nella presente Norma sono sostituite da quelle della Norma CEI EN 50075 (CEI 23-34); spine e prese per uso industriale; connettori; spine, prese fisse e mobili per Bassissima Tensione di Sicurezza; prese fisse combinate con fusibili, interruttori automatici ecc.
Schema 1 - Norme per tipologia di spine/prese
CEI 23-50;V1
DATA PUBBLICAZIONE: 2008-07
La presente Variante è basata sulla modifica IEC 60884-1/A1:2006 con limitazioni, varianti ed aggiunte indicate con una barra verticale a margine ed è destinata ad integrare la Norma base. I principali aggiornamenti introdotti riguardano gli articoli 14, 16, 19 e 22.
CEI 23-50;V2
DATA PUBBLICAZIONE: 2011-11
La presente Variante è destinata ad integrare la Norma base CEI 23-50:2007 e la Variante CEI 23-50/V1:2008. I principali aggiornamenti introdotti riguardano gli articoli 11.2, 12.1.2, 16.1, 24.1, 24.2 e il foglio di normalizzazione SPB17.
CEI 23-50;V3
DATA PUBBLICAZIONE: 2015-05
La presente Variante è basata sulla IEC 60884-1/A2:2013 con limitazioni, varianti ed aggiunte indicate con una barra verticale a margine del testo contenuto in essa ed è destinata ad integrare la Norma base
CEI 23-50:2007-03 incluse le sue Varianti V1e V2. Le prescrizioni relative ai cordoni prolungatori contenute nella Norma CEI 23-50:2007-03 e relative Varianti non sono più applicabili in quanto sostituite da quelle contenute nella Norma CEI 23-124:2012-08 e sua Variante V1.
La presente Variante rappresenta una revisione tecnica di carattere generale della Norma CEI 23-50:2007-03 e relative Varianti V1 e V2.
CEI 23-50;V3/EC1
DATA PUBBLICAZIONE: 2015-07
Il presente documento rappresenta una Errata Corrige alla Variante V3 della Norma CEI 23-50:2007-03 (Fascicolo 8764) relativa ai requisiti particolari delle spine e delle prese fisse o mobili destinate ad usi domestici e similari, sia all'interno che all'esterno, introducendo alcune correzioni ai seguenti articoli/paragrafi:
- 19; 26.1; 27 (Tabella 23).
CEI 23-50;V4
DATA PUBBLICAZIONE: 2015-08
La presente Variante è destinata ad integrare la Norma base CEI 23-50:2007-03 e relative Varianti V1, V2 e V3 e riguarda l'inserimento del nuovo Allegato IT01 applicabile alle prese a ricettività multipla P40, alle spine S16 ed S17, ed agli adattatori con parte spina S17.
CEI 23-50;V4/EC1
DATA PUBBLICAZIONE: 2016-08
Il presente documento rappresenta un Errata Corrige alla Variante V4 della Norma CEI 23-50:2007-03 (Fascicolo 8764) relativa ai requisiti particolari delle spine e delle prese fisse o mobili destinate ad usi domestici e similari, sia all'interno che all'esterno, introducendo alcune correzioni al Foglio di normalizzazione P40, relativo alla presa bipolare con contatto di terra laterale e centrale a ricettività multipla, dell'Allegato IT01 - Parte II.
CEI EN 50075:1997 / Spine bipolari non smontabili, senza contatto di terra, con tensione nominale di 250 V in c.a. ed a corrente nominale di 2,5 A
Spine non smontabili bipolari 2,5 A 250 V, con cavo, per il collegamento degli apparecchi di Classe II per usi domestici e similari
Classificazione CEI: 23-34
DATA PUBBLICAZIONE: 1997-09
La Norma si applica alle spine bipolari non smontabili, senza contatto di terra, con tensione nominale di 250 V in c.a. ed a corrente nominale di 2,5 A. Esse sono munite di cavo, per il collegamento di apparecchi di classe II destinati ad usi domestici e similari, non offrono protezione speciale contro la penetrazione dell'acqua, sono destinate per l'uso all'interno e sono utilizzabili con temperature ambiente di solito non superiori a 25°C, ma che possono occasionalmente raggiungere i 35°C.
La presente Norma costituisce la ristampa con modifiche editoriali, secondo il nuovo progetto di veste editoriale, della Norma pari numero ed edizione (Fascicolo 1874).
Spine e prese per usi domestici e similari
Parte 2: Prescrizioni particolari per adattatori
Classificazione CEI: 23-57
DATA PUBBLICAZIONE: 2020-08
La presente Norma specifica le prescrizioni particolari per gli adattatori, compresi quelli da viaggio, con tensione nominale superiore a 50 V fino ad un massimo di 250 V e con corrente nominale non superiore a 16 A, destinati ad essere utilizzati negli ambienti domestici e similari. La presente Norma copre le prescrizioni per gli adattatori con funzioni supplementari, quali ad esempio le unità di alimentazione elettronica, i variatori, i temporizzatori, gli interruttori ad infrarossi e gli interruttori per apparecchi, anche se la stessa funzione supplementare non è coperta dalla stessa Norma. Sono esclusi dal suo campo di applicazione gli adattatori con dispositivi di protezione.
La presente Norma fornisce prescrizioni riguardanti la costruzione e le modalità di prova degli adattatori di cui sopra, allo scopo di ottenere la sicurezza elettrica per gli utilizzatori e l’assenza di danni nell’ambiente circostante. Ai fini della presente Norma, per usi similari si intendono per esempio ambienti quali gli uffici, laboratori, alberghi, ospedali, scuole, negozi, interni di caravan e alloggi a bordo di navi. Gli adattatori conformi alla presente Norma sono adatti per essere utilizzati ad una temperatura ambiente normalmente non superiore a +40 °C, dove la media della temperatura ambiente per un periodo di 24 h non supera +35 °C con un limite inferiore di -5 °C.
La Norma in oggetto sostituisce completamente la Norma CEI 23-57:2011-04 che rimane applicabile fino al 31-12-2023.
La presente Norma viene utilizzata congiuntamente alla Norma CEI 23-50:2007-03.
CEI EN 60112 (CEI 15-18) Metodo per la determinazione degli indici di resistenza e di tenuta alla traccia dei materiali isolanti solidi in condizioni umide
CEI EN 60669-1 (CEI 23-9) Apparecchi di comando non automatici per installazione elettrica fissa per uso domestico e similare - Parte 1: Prescrizioni generali
CEI EN 60423 (CEI 23-26) Tubi per installazioni elettriche - Diametri esterni dei tubi per installazioni elettriche e filettature per tubi e accessori
CEI EN 50075 (CEI 23-34) Spine non smontabili bipolari 2,5 A 250 V, con cavo, per il collegamento degli apparecchi di Classe II per usi domestici e similari
CEI EN 60999-1 (CEI 23-41) Dispositivi di connessione - Conduttori elettrici in rame - Prescrizioni di sicurezza per unità di serraggio a vite e senza vite - Parte 1: Prescrizioni generali e prescrizioni particolari per conduttori da 0,2 mm2 fino a 35 mm2 (inclusi)
CEI 23-48 Involucri per apparecchi per installazioni elettriche fisse per usi domestici e similari - Parte 1: Prescrizioni generali
CEI 23-49 Involucri per apparecchi per installazioni elettriche fisse per usi domestici e similari - Parte 2: Prescrizioni particolari per involucri destinati a contenere dispositivi di protezione ed apparecchi che nell’uso ordinario dissipano una potenza non trascurabile
CEI 23-51 Prescrizioni per la realizzazione, le verifiche e le prove dei quadri di distribuzione per installazioni fisse per uso domestico e similare
CEI 23-74 Dimensioni delle scatole in materiale isolante, da incasso, per apparecchi elettrici per uso domestico e similare
CEI EN 60068-2-32 (CEI 50-6/6) Prove climatiche e meccaniche fondamentali - Parte 2: Prove - Prova Ed: Caduta libera
CEI EN 60529 (CEI 70-1) Gradi di protezione degli involucri (Codice IP)
CEI EN 61032 (CEI 70-2) Protezione delle persone e delle apparecchiature mediante involucri - Calibri di prova
CEI EN 60695-2-10 (CEI 89-12) Prove relative ai rischi di incendio - Parte 2-10: Metodi di prova al filo incandescente - Apparecchiatura di prova al filo incandescente e procedura comune di prova
CEI EN 60695-2-11 (CEI 89-13) Prove relative ai rischi di incendio - Parte 2-11: Metodi di prova al filo incandescente - Metodi di prova dell'infiammabilità per prodotti finiti
CEI EN 60068-2-30 (CEI 104-14) Prove ambientali - Parte 2: Prove - Prova Db: Caldo umido, ciclico (ciclo di 12h + 12h)
Attenzione - Controllare Varianti
1 Campo di applicazione
La presente Norma si applica alle spine e alle prese fisse o mobili per sola corrente alternata, con o senza contatto di terra, con tensione no minale superiore a 50 V, ma non superiore a 440 V e con corrente nominale non superiore a 32 A, destinate agli usi domestici e similari sia all’interno sia all’esterno.
La corrente nominale è limitata ad un massimo di 16 A per le prese fisse con morsetti senza vite. La presente Norma si applica anche alle scatole per l’installazione di apparecchi il cui involucro è parte integrante degli stessi (per es. apparecchi monoblocco) Prescrizioni per le scatole da incasso e per le scatole che non sono parte integrante dell’apparecchio sono contenute nella Norma CEI EN 60670-1.
Prescrizioni dimensionali per le scatole da in casso sono contenute nella Norma CEI 23-74.
La presente Norma si applica anche alle spine collegate ai cordoni per connettore, alle spine ed alle prese mobili che fanno parte di cordoni prolungatori e alle spine ed alle prese che sono componenti di un apparecchio utilizzatore, se non diversamente specificato nella relativa norma dell’apparecchio utilizzatore. (sostituito da V3)
La presente Norma non si applica a:
– spine e prese per uso industriale;
– connettori;
– spine, prese fisse e mobili per Bassissima Tensione di Sicurezza;
NOTA 1 I valori di SELV, PELV e FELV sono specificati nella CEI 64-8/4.
– prese fisse combinate con fusibili, interruttori automatici ecc.
NOTA 2 Le prese con lampade di segnalazione sono ammesse purché queste siano conformi all’eventuale Norma relativa.
Le spine e le prese conformi alla presente Norma dovrebbero essere adatte per l’uso a temperature ambiente normalmente non superiori a +40 °C, ma il valore medio per un periodo di 24 h non deve superare +35 °C, con un limite inferiore della temperatura dell’aria ambiente di –5 °C. (sostituito da V3)
NOTA 3 Le prese conformi alla presente Norma sono adatte per essere incorporate o montate in apparecchiature solo in modo e posizioni tali da risultare improbabile che la temperatura dell’ambiente circostante superi 35 °C (sostituito da V3)
1. Definizioni
Ai fini della presente parte della IEC 60884, si applicano sia le definizioni date nella IEC 60050 (151) che le seguenti.
NOTA 1
Quando vengono usati i termini” tensione” e “corrente”, essi si riferiscono, salvo specificazione contraria, ai valori efficaci.
NOTA 2
Nella presente Norma il termine “messa a terra" è usato per “messa a terra di protezione”.
NOTA 3
Il termine “apparecchio” è usato come termine generale per indicare spine e prese; il termine “apparecchio mobile” indica spine e prese mobili. Esempi dell’impiego degli apparecchi sono indicati nella Figura 1a.
NOTA 4
Nella presente Norma il termine “presa” si riferisce sia alle prese fisse sia a quelle mobili ad eccezione di quando si fa riferimento specifico all’uno o all’altro tipo.
3.1 spina
apparecchio destinato all’uso frequente da parte di persone comuni, avente spinotti destinati ad impegnarsi con gli alveoli di una presa e provvisto anche di mezzi per la connessione elettrica ed il fissaggio meccanico di un cavo flessibile. (sostituito da V3)
NOTA
Per scopi speciali quali le catene luminose (vedi anche IEC 60598-2-20), due o tre cavi unipolari possono essere collegati con la spina. (aggiunta da V3)
3.2 presa
apparecchio destinato all’uso frequente da parte di persone comuni, avente alveoli destinati ad impegnarsi con gli spinotti di una spina e provvisto di morsetti o terminazioni per la connessione dei cavi. (sostituito da V3)
3.3 presa fissa
presa destinata ad essere collegata ad una installazione fissa
3.4 presa mobile
presa destinata ad essere collegata ad un cavo flessibile, o indissolubilmente collegata con esso, e che può facilmente essere spostata da un posto ad un altro mentre è collegata alla rete di alimentazione. (sostituito da V3)
3.5 presa multipla
combinazione di due o più prese
NOTA Un esempio di presa multipla è rappresentato nella Figura 1b.
3.6 presa per apparecchi utilizzatori
presa destinata ad essere incorporata o fissata in apparecchi utilizzatori
3.7 spina e presa mobile smontabili
apparecchio che permette la sostituzione del suo cavo flessibile
3.8 spina e presa mobile non smontabili
apparecchio costruito in modo tale da formare un pezzo unico con il cavo flessibile dopo il collegamento e l’assemblaggio effettuato dal costruttore dell’apparecchio (vedi anche 14.1)
3.9 apparecchio realizzato con procedimento di sovrastampaggio
apparecchio non smontabile mobile, la cui costruzione è completata da materiale isolante stampato attorno alle parti componenti pre-assemblate ed alle terminazioni del cavo flessibile [IEV 442-01-14, modificata]
3.10 scatola da installazione
scatola intesa per l’installazione a parete, pavimento o soffitto, da incasso o sporgente, destinata all’uso con prese fisse
3.11 cordone per connettore
complesso costituito da un cavo flessibile collegato ad una spina e ad un connettore, destinato a collegare un apparecchio elettrico utilizzatore alla rete di distribuzione elettrica
3.12 cordone prolungatore
complesso costituito da un cavo flessibile collegato ad una spina ed a una presa mobile
3.13 morsetto
dispositivo di connessione isolato o non, destinato alla connessione elettrica riutilizzabile dei conduttori esterni
3.14 terminazione
dispositivo di connessione isolato o non, destinato alla connessione elettrica non riutilizzabile per conduttori esterni
...
6.1 Le prese e le spine devono essere del tipo ed avere i valori nominali richiesti nella Tabella 1 seguente.
Tabella 1 – Combinazioni preferenziali dei tipi e delle caratteristiche nominali
La rispondenza è verificata con esame a vista della marcatura.
6.3 Gli apparecchi dovrebbero preferibilmente avere un grado di protezione IP20, IP40, IP44, IP54 o IP55
7 Classificazione
7.1 Classificazione degli apparecchi
7.1.1 Gli apparecchi sono classificati secondo il grado di protezione contro l’accesso a parti pericolose e contro gli effetti dannosi dovuti alla penetrazione di corpi solidi estranei come descritto nella IEC 60529 (sostituito da V3)
7.1.2 Classificazione secondo il grado di protezione contro gli effetti dannosi dovuti alla penetrazione dell’acqua
– IPX0: apparecchi non protetti contro la penetrazione dell’acqua
– IPX4: apparecchi protetti contro gli spruzzi dell’acqua
– IPX5: apparecchi protetti contro i getti d’acqua.
NOTA Per una spiegazione dei gradi IP, vedere la IEC 60529.
7.1.3 Classificazione secondo la presenza del contatto di terra
– Apparecchi senza contatto di terra
– Apparecchi con contatto di terra.
7.1.4 Classificazione secondo il metodo di connessione del cavo
– Apparecchi smontabili
– Apparecchi non smontabili.
7.1.5 Classificazione secondo il tipo di morsetti
– Apparecchi con morsetti a vite– Apparecchi con morsetti senza vite, solo per conduttori rigidi (eliminato V3)
– Apparecchi con morsetti senza vite per conduttori rigidi e flessibili.
Gli apparecchi con morsetti senza vite solo per conduttori rigidi non sono ammessi. (aggiunto V3)
7.2 Classificazione delle prese
7.2.1 Classificazione secondo il grado di protezione contro la scossa elettrica
Le prese sono classificate secondo il grado di protezione contro la scossa elettrica, quando installate nelle condizioni di impiego normale:
Prese con protezione aumentata (vedi 10.7).
7.2.2 Classificazione secondo la presenza di schermi
Le prese sono classificate second o la presenza di schermi in:
Prese con schermi (vedi 10.5).
7.2.3 Classificazione secondo il metodo di installazione/utilizzazione delle prese
Le prese sono classificate secondo il loro metodo di installazione/utilizz azione in:
a) sporgente,
b) da incasso,
c) da semi-incasso,
d) a pannello,
e) per stipiti,
f) mobili,
g) da tavolo (singole o multiple),
h) per incasso nel pavimento, o
i) prese per apparecchi.
7.2.4 Classificazione secondo il sistema di installazione
Le prese sono classificate secondo il sistema di installazione, in funzione del progetto in:
a) prese fisse con calotta o placca di copertura che possono essere tolte senza spostamento dei conduttori (tipo A) (Esempio SPA11)
b) prese fisse con calotta o placca di copertura che non possono essere tolte senza spostamento dei conduttori (tipo B). (Esempio SPB11)
NOTA Se una presa fissa ha una base che non può essere separata dalla calotta o dalla placca di copertura e necessita una placca supplementare, per soddisfare la norma, che può essere tolta per ridecorare il muro, senza spostamento dei conduttori, si considera tale presa di tipo A, purché la placca supplementare soddisfi le prescrizioni specificate per le calotte e le placche di copertura. (sostituito da V3)
7.2.5 Classificazione secondo l’utilizzazione prevista
Le prese sono classificate secondo l’utilizzazione prevista in
a) prese per circuiti, ove un circuito unico di messa a terra assicura la messa a terra di protezione degli apparecchi connessi e delle masse della presa, se esistenti;
b) prese per circuiti ove l’immunità al rumore elettrico è auspicata per i circuiti di messa a terra degli apparecchi collegati. Il circuito di messa a terra degli apparecchi è elettricamente separato dal circuito di messa a terra di protezione fornito per le masse della presa, se esistenti.
7.2.101 Secondo la ricettività:
– singola;
– multipla.
7.3 Classificazione delle spine
Le spine sono classificate se condo la classe dell’apparecchio utilizzatore al quale esse devono essere collegate:
– spine per apparecchi utilizzatori di classe I, o
– spine per apparecchi utilizzatori di classe II.
Per la descrizione delle classi degli apparecchi utilizzatori vedere la pubblicazione IEC 61140.
8 Marcatura
8.1 Gli apparecchi devono essere marcati come segue:
– corrente nominale in ampere
– tensione nominale in volt
– simbolo per la natura della corrente di alimentazione
– nome del costruttore o del venditore responsabile, marchio di fabbrica o marchio di identificazione
– riferimento di tipo, che può essere un numero di catalogo:
– prima cifra caratteristica per il grado di protezione contro l’accesso a parti pericolose e contro gli effetti dannosi dovuti alla penetrazione di corpi solidi estranei se dichiarato superiore a 2, e per le prese fisse superiore a 4, nel qual caso deve essere marcata anche la seconda cifra caratteristica (sostituito da V3)
– seconda cifra caratteristica per il grado di protezione contro gli effetti dannosi dovuti alla penetrazione dell’acqua se dichiarato superiore a 0, e per le prese fisse superiore a 2, nel qual caso deve essere marcata anche la prima cifra caratteristica. (sostituito da V3)
Se il sistema consente che siano introdotte spine con un certo grado di protezione IP in prese aventi diverso grado IP, deve essere posta attenzione al fatto che il grado di protezione risultante dalla combinazione spina/presa è il più basso dei due. Questo deve essere riportato nella documentazione del costruttore relativa alla presa.
NOTA 1 I gradi di protezione sono basati sulla IEC 60529.
Inoltre le prese con morsetti senza vite devono essere marcate con:
– un’appropriata indicazione della lunghezza dell’isolante da togliere prima dell’inserzione del conduttore nel morsetto senza vite;
– un’indicazione dell’idoneità ad accettare soltanto conduttori rigidi, per quelle prese che hanno questa limitazione.
NOTA 2 Queste marcature supplementari possono essere poste sulla presa, sull’imballo e/o riportate su un foglio di istruzioni che accompagna la presa.
8.2 Quando si fa uso di simboli, essi devono essere i seguenti:
NOTA 1 Dettagli di costruzione dei simboli sono dati nella IEC 60417-2.
NOTA 2 Nel codice IP la lettera "X” è sostituita con la cifra appropriata.
NOTA 3 Le linee formate da un utensile durante la costruzione non sono considerate parte della marcatura.
La marcatura della natura della corrente di alimentazione deve essere posta a fianco delle marcature relative alla corrente ed alla tensione nominale.
8.3 Per le prese fisse le seguenti marcature devono essere poste sulla parte principale:
– corrente nominale, tensione nominale e natura della corrente di alimentazione;
– nome, marchio di fabbrica o marchio di identificazione del costruttore o del venditore responsabile;
– lunghezza di isolamento da rimuovere prima dell’inserzione del conduttore nel morsetto senza vite, se esiste; (eliminato da V3)
– riferimento di tipo, che può essere il numero di catalogo.
NOTA 1 Il riferimento di tipo può essere anche soltanto il riferimento della serie.
Parti come placche di copertura che sono necessarie per motivi di sicurezza e che sono destinate ad essere vendute separatamente, devono portare il nome, il marchio di fabbrica o il marchio di identificazione del costruttore o del venditore. Il riferimento di tipo può essere riportato sull’imballo più piccolo.
NOTA 2 Riferimenti di tipo supplementari possono essere indicati sulla parte principale o sulla parte esterna della sua custodia.
NOTA 3 L’espressione "parte principale" indica la parte che porta gli alveoli. (Eliminato V1)
Il grado IP, se applicabile, deve essere indicato in modo da essere facilmente visibile quando la presa è montata e collegata come nell’uso normale.
Le prese fisse classificate secondo il punto b) di 7.2.5 devono essere identificate da un triangolo che deve essere visibile dopo l’installazione, a meno che non abbiano una configurazione d’interfaccia diversa da quella utilizzata in circuiti normali.
8.4 Per spine e prese mobili le marcature di cui in 8.1, ad esclusione del riferimento di tipo, devono essere facilmente individuabili quando l’apparecchio è assemblato e collegato.
Spine e prese mobili per apparecchi utilizzatori di classe II non devono essere marcate con il simbolo delle costruzioni di classe II.
NOTA Il riferimento di tipo degli apparecchi mobili smontabili può essere marcato all’interno della custodia o della calotta.
I morsetti previsti esclusivamente per il conduttore di neutro devono essere identificati dalla lettera N. (Eliminato V1)
8.5 I morsetti previsti esclusivamente per il conduttore di neutro devono essere identificati dalla lettera N. (Aggiunto V1)
I morsetti di terra destinati alla connessione del conduttore di protezione devono essere identificati con il simbolo
NOTA 1 "Parti facilmente asportabili" sono quelle parti che possono essere rimosse durante la normale installazione della presa o l’assemblaggio della spina.
NOTA 2 Le terminazioni degli apparecchi non smontabili non necessitano di marcature.
I morsetti previsti per la connessione dei conduttori che non fanno parte della funzione principale della presa devono essere chiaramente identificati a meno che il loro scopo sia evidente o indicato in un diagramma di collegamento che deve essere fissato all’apparecchio.
L’identificazione di tali morsetti può essere ottenuta mediante
– la loro marcatura con i simboli grafici in accordo con la IEC 60417-2 o colori e/o sistemi alfanumerici, o
– la loro dimensione fisica o la relativa posizione.
I terminali delle lampade al neon o indicatrici non sono considerati come conduttori per lo scopo di questo paragrafo.
8.6 Per le scatole per installazione sporgente che formano parte integrante delle prese aventi un grado IP superiore a IP4X, o superiore a IPX2, il codice IP deve essere marcato sulla parte esterna del relativo involucro associato in modo da essere facilmente visibile quando la presa è montata e collegata come nell’uso normale (sostituito da V3)
8.7 Deve essere indicato, mediante marcatura o nel catalogo del costruttore o nel foglio di istruzione, in quale posizione o con quale speciale mezzo (ad es. scatola, tipo di superficie di montaggio, spina, ecc.) è assicurato il grado di protezione dichiarato delle prese fisse da incasso e semi-incasso che hanno un grado IP superiore a IPX0.
La conformità è verificata mediante esame a vista.
8.8 La marcatura deve essere duratura e facilmente leggibile con visione normale o corretta, senza ingrandimento supplementare. (sostituito da V3)
La conformità è verificata mediante esame a vista e la seguente prova.
La prova è effettuata strofinando manualmente la marcatura per 15 s con uno straccio imbevuto di acqua, e nuovamente per altri 15 secondi con uno straccio imbevuto di benzina.
NOTA 1 La marcatura realizzata mediante punzonatura, stampaggio, incisione o in rilievo non è sottoposta a questa prova.
NOTA 2 Si raccomanda che la benzina usata abbia esano solvente con un contenuto aromatico non superiore allo 0,1 % in volume; un valore di kauributanolo (IKB) approssimativamente pari a 29; un punto di ebollizione iniziale di circa 65 °C; un punto di ebollizione finale di circa 69 °C ed una densità di circa 0,68 g/cm3.
9 Verifica delle dimensioni
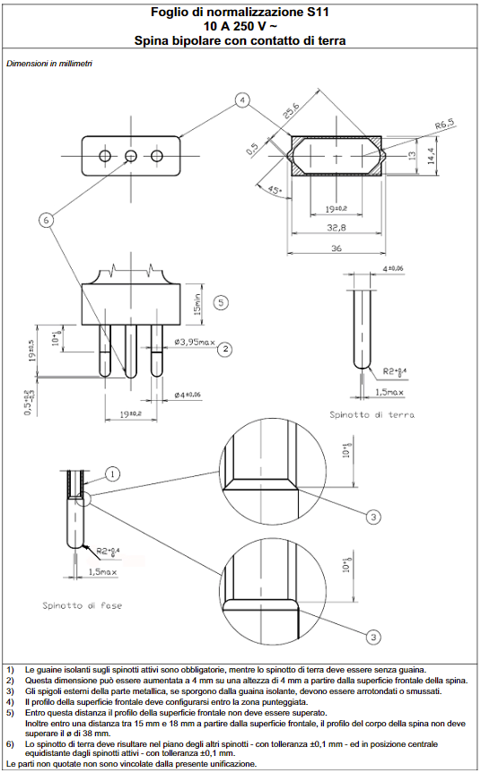
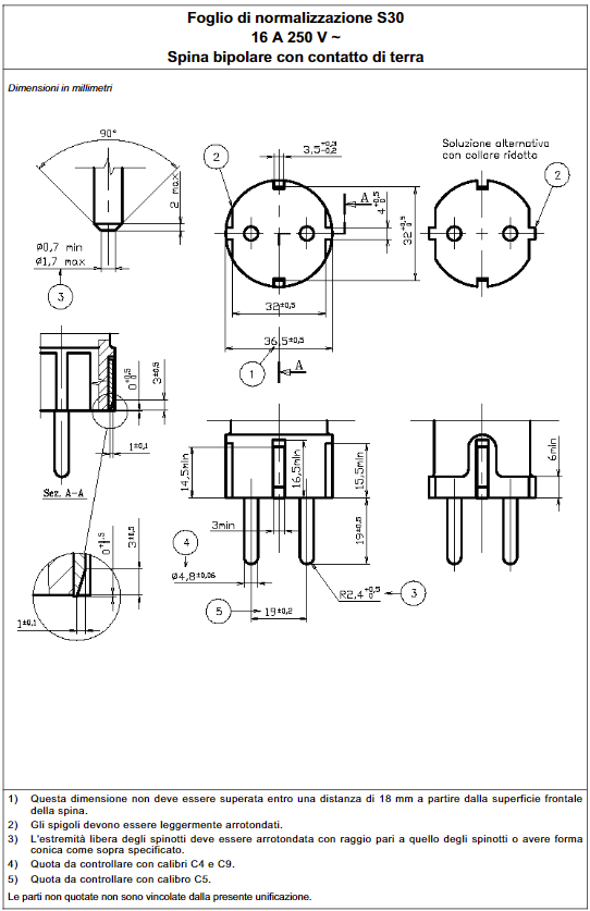
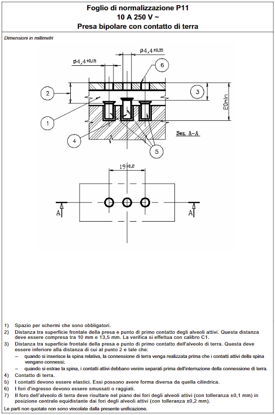
9.1 Gli apparecchi devono corrispondere ai fogli di normalizzazione S10, S11, S16, S17, S30, S31, S32, SPA11, SPA17, SPB11, SPB17, P10, P11, P17, P17/11 oppure P30 e P40.
Fogli di armonizzazione

S11 - Spina bipolare con contatto di terra (10 A 250 V)
...
S17 - Spina bipolare con contatto di terra (16 A 250 V)

S32 - Spina bipolare senza contatti di terra (16 A 250 V) (indissolubilmente collegata al cavo)

P17 - Presa bipolare con contatto di terra (16 A 250 V) (fissa / mobile)

P17/11 - Presa bipolare con contatto di terra a ricettività multipla (16 A 250 V) (fissa / mobile)
P30 - Presa bipolare con contatto di terra laterale e centrale, a ricettività multipla (16 A 250 V) (fissa / mobile)
P40 - Persa bipolare con contatto di terra laterale e centrale, a ricettività multipla (16 A 250V) (fissa / mobile)
...
Vedi Documento sugli adattatoti CEI 23-57
Vedi Vademecum spine, prese e adattatori
Segue in allegato
Certifico Srl - IT | Rev. 0.0 2023
©Copia autorizzata Abbonati
Collegati
CEI 23-57 Spine e prese per usi domestici e similari - Adattatori 2020
IEC 60884-1:2022
REFIT Platform Opinion on the submission by a citizen on Plugs and Sockets
CEI 23-57
CEI 23-151
CEI EN 50075:1997
Norme della serie CEI EN IEC 60309-X
Spine e prese elettriche: gli standard nel mondo
| Descrizione | Livello | Dimensione | Downloads | |
|---|---|---|---|---|
| CEI 23-50 Spine e prese usi domestici-similari - Fogli di normalizzazione Rev. 00 2023.pdf Certifico Srl - Rev. 0.0 2023 |
2564 kB | 142 |





























