Parapetti permanenti | Requisiti dimensionali geometrici
| ID 6708 | | Visite: 302528 | Documenti Riservati Sicurezza | Permalink: https://www.certifico.com/id/6708 |
Parapetti permanenti | Requisiti dimensionali geometrici / Rev. 1.0 Febb. 2024
ID 6708 | Update Rev. 1.0 del 28.02.2024 / Documento completo allegato
Il presente Documento illustra i requisiti dimensionali geometrici con brevi cenni di requisiti prestazionali dei "Parapetti permanenti", l'analisi è stata effettuata in quanto continua a mancare una regolamentazione chiara e concordante sui parapetti in ambito delle costruzioni.
- Inserito paragrafo 9 - “Adeguamento parapetti non conformi”;
- Inseriti link normativi;
- Aggiornato riferimento norma UNI EN 13374:2019.
1. Premessa
2. NTC 2018
3. D.M. 236 del 14/06/1989
4. D.LGS. 81/2008
5. NORME TECNICHE DI RIFERIMENTO
6. UNI 10809:1999
6.1 CARATTERISTICHE DIMENSIONALI
6.1.1 Altezza
6.1.2 Scalabilità
6.1.3 Inattraversabilità
6.1.4 Impugnabilità del corrimano
6.2 PRESTAZIONI MECCANICHE
6.2.1 Resistenza meccanica a carico statico di colonne e colonne piantone
6.2.2 Resistenza meccanica ai carichi statici distribuiti
6.2.3 Resistenza meccanica ai carichi dinamici
6.2.4 Resistenza meccanica ai carichi statici concentrati sui pannelli
6.3 SEQUENZA DELLLE PROVE
7. UNI EN ISO 14122-3:2016
7.1 Definizione parapetto
7.2 Requisiti specifici per i parapetti per piattaforme, corridoi di passaggio e piattaforme di riposo
7.3 Requisiti specifici per i parapetti e corrimano per scale
8. Es. Deroga Regolamento Edilizio
Conclusioni
9. Adeguamento parapetti non conformi
Fonti
Excursus
1. Premessa
Il presente Documento illustra i requisiti dimensionali geometrici dei "Parapetti permanenti" (sono esclusi i parapetti provvisori - Vedasi D.Lgs. 81/2008 Titolo IV cantieri), relazionando la legislazione con le norme tecniche, in ambienti abitativi e di lavoro:
- di Lavoro: (TUS D.Lgs. 81/2008) / Prodotto (Macchine Direttiva 2006/42/CE);
- abitativi: D.M. 17/01/2018 (NTC 2018) / D.M. 236 del 14/06/1989 (prescrizioni barriere architettoniche edifici privati).
Il Presente Documento non va ad esaminare i requisiti costruttivi e prestazionali (solo brevi cenni) dei "Parapetti permanenti", ma solo i requisiti dimensionali geometrici essenziali, quali altezza, ecc.
Il D.M. 17/01/2018 (NTC 2018), è la legislazione di riferimento delle costruzioni, ma non riporta prescrizioni per i parapetti, salvo il D.M. 236 del 14/06/1989, relativo alle prescrizioni tecniche per le barriere architettoniche degli edifici privati, continua a mancare una regolamentazione chiara concordante sui parapetti in ambito delle costruzioni.
Le norme tecniche danno indicazioni non cogenti, tuttavia, nel presente documento ci si soffermerà su quanto stabilito dalle norme UNI, ed in particolare dalla UNI 10809:1999 e della UNI EN ISO 14122-3:2016 (armonizzata Direttiva macchine 2006/42/CE)
Controllare eventuali deroghe di regolamenti locali dalla legislazione nazionale riportata.
Eventuali lavori sui parapetti e ringhiere (es adeguamento normativo) rientrano nel Glossario edilizia libera.
Il documento non analizza casi specifici/particolari per i quali si rimanda alla consultazione delle norme tecniche di riferimento.
Aggiornamento delle «Norme tecniche per le costruzioni
(GU n. 42 del 20-2-2018 SO n. 8)
Le NTC 2018 non apportano cambiamenti per quanto riguarda i parapetti rispetto alle NTC 2008.
Unica risultanza riguarda la sezione 5.1.3.10 (Cap. 5 Ponti) - Azioni sui parapetti e urto di veicolo in svio
L’altezza dei parapetti non può essere inferiore a 1,10 m. I parapetti devono essere calcolati in base ad un’azione orizzontale di 1,5 kN/m applicata al corrimano (Ponti)
Prescrizioni tecniche necessarie a garantire l'accessibilità, l'adattabilità e la visitabilità degli edifici privati e di edilizia residenziale pubblica sovvenzionata e agevolata, ai fini del superamento e dell'eliminazione delle barriere architettoniche.
(Gazzetta Ufficiale n.145 del 23 giugno 1989 SO)
Il D.M. 236 del 14/06/1989, prevede che l’altezza del corrimano debba essere non inferiore ai 90 cm. e che “il parapetto che costituisce la difesa verso il vuoto deve avere un’altezza minima di 1,00 m ed essere inattraversabile da una sfera di diametro di cm 10″.
…
Art. 1 - Campo di Applicazione
Le norme contenute nel presente decreto si applicano:
1) agli edifici privati di nuova costruzione, residenziali e non, ivi compresi quelli di edilizia residenziale convenzionata;
2) agli edifici di edilizia residenziale pubblica sovvenzionata ed agevolata, di nuova costruzione;
3) alla ristrutturazione degli edifici privati di cui ai precedenti punti 1) e 2), anche se preesistenti alla entrata in vigore del presente decreto;
4) agli spazi esterni di pertinenza degli edifici di cui ai punti precedenti.
…
4.1.8 Balconi e Terrazze
La soglia interposta tra balcone o terrazza e ambiente interno non deve presentare un dislivello tale da costituire ostacolo al transito di una persona su sedia a ruote.
E' vietato l'uso di porte-finestre con traversa orizzontale a pavimento di altezza tale da costituire ostacolo al moto della sedia a ruote. Almeno una porzione di balcone o terrazza, prossima alla porta-finestra, deve avere una profondità tale da consentire la manovra di rotazione della sedia a ruote. Ove possibile si deve dare preferenza a parapetti che consentano la visuale anche alla persona seduta, garantendo contemporaneamente i requisiti di sicurezza e protezione dalle cadute verso l'esterno.
(Per le specifiche vedi 8.1.8)
4.1.10 Scale Le scale devono presentare un andamento regolare ed omogeneo per tutto il loro sviluppo. Ove questo non risulti possibile è necessario mediare ogni variazione del loro andamento per mezzo di ripiani di adeguate dimensioni. Per ogni rampa di scale i gradini devono avere la stessa alzata e pedata. Le rampe devono contenere possibilmente lo stesso numero di gradini, caratterizzati da un corretto rapporto tra alzata e pedata. Le porte con apertura verso la scala devono avere uno spazio antistante di adeguata profondità. I gradini delle scale devono avere una pedata antisdrucciolevole a pianta preferibilmente rettangolare e con un profilo preferibilmente continuo a spigoli arrotondati. Le scale devono essere dotate di parapetto atto a costituire difesa verso il vuoto e di corrimano. I corrimano devono essere di facile prendibilità e realizzati con materiale resistente e non tagliente. Le scale comuni e quelle degli edifici aperti al pubblico devono avere i seguenti ulteriori requisiti:
1) la larghezza delle rampe e dei pianerottoli deve permettere il passaggio contemporaneo di due persone ed il passaggio orizzontale di una barella con una inclinazione massima del 15% lungo l'asse longitudinale;
2) la lunghezza delle rampe deve essere contenuta; in caso contrario si deve interporre un ripiano in grado di arrestare la caduta di un corpo umano;
3) il corrimano deve essere installato su entrambi i lati;
4) in caso di utenza prevalente di bambini si deve prevedere un secondo corrimano ad altezza proporzionata;
5) è preferibile una illuminazione naturale laterale. Si deve dotare la scala di una illuminazione artificiale, anche essa laterale, con comando individuabile al buio e disposto su ogni pianerottolo.
6) Le rampe di scale devono essere facilmente percepibili, anche per i non vedenti.
(Per le specifiche vedi 8.1.10)
…
Art. 8 - Specifiche funzionali e dimensionali
8.0 Generalità
8.0.1 Modalità' di misura
Altezza parapetto.
Distanza misurata in verticale dal lembo superiore dell'elemento che limita l'affaccio (copertina, traversa inferiore infisso, eventuale corrimano o ringhierino) al piano di calpestio.
Altezza corrimano
Distanza misurata in verticale dal lembo superiore dei corrimano al piano di calpestio.
Altezza parapetto o corrimano scale
Distanza dal lembo superiore del parapetto o corrimano al piano di calpestio di un qualunque gradino, misurata in verticale in corrispondenza della parte anteriore del gradino stesso.
…
8.1.8 Balconi e terrazze
Il parapetto deve avere una altezza minima di 100 cm ed essere inattraversabile da una sfera di 10 cm di diametro. Per permettere il cambiamento di direzione, balconi e terrazze dovranno avere almeno uno spazio entro il quale sia inscrivibile una circonferenza di diametro 140 cm.
…
8.1.10 Scale
…
Il parapetto che costituisce la difesa verso il vuoto deve avere un'altezza minima di 1,00 m ed essere inattraversabile da una sfera di diametro di cm 10. In corrispondenza delle interruzioni del corrimano, questo deve essere prolungato di 30 cm oltre il primo e l'ultimo gradino. Il corrimano deve essere posto ad una altezza compresa tra 0,90/1 metro. Nel caso in cui è opportuno prevedere un secondo corrimano, questo deve essere posto ad un'altezza di 0,75 m. Il corrimano su parapetto o parete piena deve essere distante da essi almeno 4 cm. Le rampe di scale che non costituiscono parte comune o non sono di uso pubblico devono avere una larghezza minima di 0,80 m. In tal caso devono comunque essere rispettati il già citato rapporto tra alzata e pedata (in questo caso minimo 25 cm), e la altezza minima del parapetto.
…
Attuazione dell'articolo 1 della legge 3 agosto 2007, n. 123, in materia di tutela della salute e della sicurezza nei luoghi di lavoro
(G.U. n. 101 del 30 aprile 2008)
...
ALLEGATO IV REQUISITI DEI LUOGHI DI LAVORO
1. AMBIENTI DI LAVORO
1.7 Scale
…
1.7.2
...
1.7.2.1. Agli effetti del presente decreto è considerato "normale" un parapetto che soddisfi alle seguenti condizioni:
1.7.2.1.1 sia costruito con materiale rigido e resistente in buono stato di conservazione;
1.7.2.1.2 abbia un'altezza utile di almeno un metro;
1.7.2.1.3 sia costituito da almeno due correnti, di cui quello intermedio posto a circa metà distanza fra quello superiore ed il pavimento;
1.7.2.1.4 sia costruito e fissato in modo da poter resistere, nell'insieme ed in ogni sua parte, al massimo sforzo cui può essere assoggettato, tenuto conto delle condizioni ambientali e della sua specifica funzione.
1.7.2.2. È considerato "parapetto normale con arresto al piede" il parapetto definito al comma precedente, completato con fascia continua poggiante sul piano di calpestio ed alta almeno 15 centimetri.
1.7.2.3. È considerata equivalente ai parapetti definiti ai punti precedenti, qualsiasi protezione, quale muro, balaustra, ringhiera e simili, realizzante condizioni di sicurezza contro la caduta verso i lati aperti, non inferiori a quelle presentate dai parapetti stessi.
1.7.3. Le impalcature, le passerelle, i ripiani, le rampe di accesso, i balconi ed i posti di lavoro o di passaggio sopraelevati devono essere provvisti, su tutti i lati aperti, di parapetti normali con arresto al piede o di difesa equivalenti. Tale protezione non è richiesta per i piani di caricamento di altezza inferiore a m. 2.00.
Figura 1 - Parapetto D.Lgs. 81/08
Ringhiere, balaustre o parapetti prefabbricati
Determinazione della resistenza meccanica a carico statico di colonne e colonne-piantone
La norma definisce un metodo di prova per determinare la resistenza meccanica ai carichi statici concentrati di colonne e colonne-piantone facenti parte di ringhiere, balaustre o parapetti di qualunque materiale. La norma si applica a ringhiere, balaustre o parapetti prefabbricati e non realizzati in opera e/o installati con l'ausilio di opere murarie.
UNI 10806:1999
Ringhiere, balaustre o parapetti prefabbricati
Determinazione della resistenza meccanica ai carichi statici distribuiti
La norma si applica a ringhiere, balaustre o parapetti prefabbricati e non realizzati in opera e/o installati con l'ausilio di opere murarie. Tale norma definisce il metodo di prova per la resistenza meccanica ai carichi statici distribuiti di ringhiere, parapetti e balaustre prefabbricati aventi funzione di protezione dalle cadute
UNI 10807:1999
Ringhiere, balaustre o parapetti prefabbricati
Determinazione della resistenza meccanica ai carichi dinamici
La norma definisce un metodo di prova per determinare la resistenza meccanica ai carichi dinamici di ringhiere, balaustre o parapetti di qualunque materiale. Tale Norma definisce il metodo di prova per la determinazione della resistenza meccanica ai carichi dinamici di ringhiere, parapetti o balaustre prefabbricate, aventi funzione di protezione dalle cadute, utilizzando la prova del pendolo con dispositivo di massa pari a kg 50 ed altezza di caduta variabile in base alla destinazione d'uso. La norma si applica a ringhiere, balaustre o parapetti prefabbricati e non realizzati in opera e/o installati con l'ausilio di opere murarie.
UNI 10808:1999
Ringhiere, balaustre o parapetti prefabbricati
Determinazione della resistenza meccanica ai carichi statici concentrati sui pannelli
La norma definisce un metodo di prova per determinare la resistenza meccanica ai carichi statici concentrati sui pannelli di ringhiere, balaustre o parapetti di qualunque materiale. La norma si applica a ringhiere, balaustre o parapetti prefabbricati e non realizzati in opera e/o installati con l'ausilio di opere murarie.
UNI 10809:1999
Ringhiere, balaustre o parapetti prefabbricati
Dimensioni, prestazioni meccaniche e sequenza delle prove.
La norma stabilisce le caratteristiche dimensionali e le prestazioni meccaniche di ringhiere, balaustre o parapetti prefabbricati, in funzione della loro destinazione d'uso e dell'ambiente di installazione. Essa stabilisce inoltre la sequenza funzionale delle prove di caratterizzazione prestazionale.
UNI EN ISO 14122-3:2016
Sicurezza del macchinario
Mezzi di accesso permanenti al macchinario - Parte 3: Scale, scale a castello e parapetti.
La norma fornisce requisiti per scale non motorizzate, scale a castello e parapetti che fanno parte di una macchina fissa, per parti regolabili non motorizzate e per parti mobili dei mezzi fissi di accesso.
Da menzionare, non applicabile a parapetti permanenti, ma solo provvisori:
UNI EN 13374:2019
Sistemi temporanei di protezione dei bordi - Specifica di prodotto - Metodi di prova
6. UNI 10809:1999
UNI 10809:1999
Ringhiere, balaustre o parapetti prefabbricati
Dimensioni, prestazioni meccaniche e sequenza delle prove.
6.1 CARATTERISTICHE DIMENSIONALI
6.1.1 Altezza
Tabella 1 - Altezza minima di ringhiere, parapetti balaustre e corrimano
....
In particolare, nel caso di ringhiere, balaustre o parapetti realizzati a fasce orizzontali dovranno essere considerati i seguenti requisiti dimensionali:
- la fascia inferiore della ringhiera, parapetto o balaustra deve essere cieca e con la faccia interna avente profilo rettilineo e perpendicolare al piano terra;
- il bordo superiore della fascia inferiore deve essere ad almeno 500 mm dalla punta gradino per le ringhiere, e dal piano di calpestio per balaustre o parapetti (figura 2);
Figura 2 - Scalabilità
- per un’altezza minima pari a 700 mm dalla punta gradino per le ringhiere e dal piano di calpestio per balaustre o parapetti, le ulteriori fasce devono presentare luce libera tra loro non maggiore di 20 mm (figura 3).
...
6.1.3 Inattraversabilità
Ringhiere, balaustre o parapetti devono essere inattraversabili in qualsiasi punto da una sfera di 100 mm di diametro.
Figura 4 Inattraversabilità
...
6.2 PRESTAZIONI MECCANICHE
6.2.1 Resistenza meccanica a carico statico di colonne e colonne piantone
Le colonne e colonne-piantone devono essere sottoposte alla prova definita nella norma UNI 10805.
Al termine della prova non si devono riscontrare rotture o degradi che possano compromettere la sicurezza dell’utente previsti per il prodotto in fase di progetto.
Sono ammesse deformazioni elastiche delle colonne o colonne-piantone, purchè l’elemento conico non oltrepassi il campione sottoposto a prova.
...
7. UNI EN ISO 14122-3:2016
UNI EN ISO 14122-3:2016
Sicurezza del macchinario
Mezzi di accesso permanenti al macchinario - Parte 3: Scale, scale a castello e parapetti.
La norma è armonizzata per la Direttiva macchine 2006/42/CE, Vedi le Comunicazione norme armonizzate.
...
7.2 Requisiti specifici per i parapetti per piattaforme, corridoi di passaggio e piattaforme di riposo
a. quando l'altezza di un'eventuale caduta è maggiore di 500 mm è necessario installare un parapetto;
b. si deve installare un parapetto quando il dislivello tra una piattaforma e la struttura della macchina o la parete è maggiore di 180 mm oppure se la protezione della struttura non è equivalente ad un parapetto. Tuttavia si deve installare una tavola fermapiedi quando lo spazio tra la piattaforma e la struttura adiacente è maggiore di 20 mm;
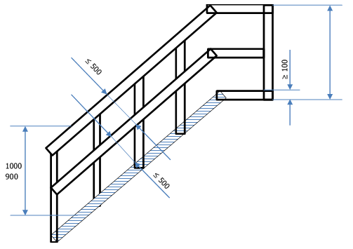
c. l'altezza minima del parapetto deve essere di 1100 mm. L’altezza del corrimano deve essere ≤ 1100 mm. Il corrimano deve essere parallelo alla linea di camminamento;
d. il parapetto deve includere almeno un corrente intermedio o un'altra protezione equivalente. Lo spazio libero tra il corrimano e il corrente intermedio come pure tra quest'ultimo e la tavola fermapiedi non deve essere maggiore di 500 mm;
e. quando si utilizzano montanti verticali invece di un corrente intermedio la distanza orizzontale libera tra i montanti deve essere al massimo di 180 mm;
f. una tavola fermapiedi con un’altezza minima di 100 mm deve essere installata al massimo a 12 mm dal piano di calpestio e dal bordo della piattaforma, così come per le piattaforme di riposo. L’eventuale spazio tra le tavole fermapiedi di parapetti adiacenti non deve essere maggiore di 20 mm;
Figura 7 - Parapetto senza arrotondamenti
...
Figura 9 - Parapetto con forma a “D”
Figura 10 - Esempio di parapetto per scale e continuazione con parapetto orizzontale
...
...
Esempio di Regolamento edilizio comunale che deroga dalle disposizioni legislative nazionali:
Regolamento edilizio Città di Torino
...
Articolo 45 - Parapetti, ringhiere e frangivento
1. Parapetti e ringhiere devono essere posizionati in qualunque spazio praticabile ove sussista pericolo di caduta, indipendentemente dalla funzione di quest'ultimo. In particolare devono essere sempre previsti a protezione di balconi, logge e terrazzi.
2. Parapetti e ringhiere devono avere altezza, misurata dalla superficie praticabile più elevata presente a ridosso del parapetto, non inferiore a metri 1,10 e non superiore a metri 1,20 e presentare notevole resistenza agli urti ed alla spinta in conformità alle vigenti leggi in materia; non devono essere scalabili ovvero presentare punti di appoggio che ne favoriscano lo scavalcamento, né presentare aperture o interspazi di larghezza libera superiore a 0,10 metri.
3. Per la realizzazione di parapetti e ringhiere sono ammessi tutti i materiali tecnicamente adatti allo scopo di garantire sicurezza purché compositivamente coerenti all'immagine dell'edificio nel suo contesto ambientale. Il vetro è ammesso solo in presenza di requisiti di resistenza e di non frammentazione agli urti, debitamente certificati.
4.Costituiscono chiusura di perimetro le pareti, i pannelli e le vetrate frangivento o di separazione fra le logge, i balconi e i terrazzi, con altezza superiore a 2/3 dell'altezza netta di piano e, comunque, non superiore a metri 2,50. Tali manufatti sono sempre consentiti con altezza massima di metri 2,20, fermo restando che dovrà essere sempre garantita una porzione aperta non inferiore a metri 0,5 di altezza. Con tali manufatti non potrà mai essere delimitato uno spazio per più di 2/3 del suo perimetro.
CASO 1 – Luogo di lavoro antecedente anno 1989
Nei luoghi di lavoro i cui parapetti permanenti risultino di altezza inferiore al metro è sempre obbligatorio adeguarli all’altezza minima stabilita dalla legge.
CASO 2 - Edificio condominiale antecedente anno 1989
Nel caso di edificio condominiale i cui balconi e terrazzi abbiano un parapetto di altezza inferiore al metro, in quanto costruiti precedentemente al 1989, non sussiste alcun obbligo di adeguarsi all’altezza minima stabilita dalla legge.
Nel caso in cui, vengano svolti lavori di ristrutturazione (cosiddetta “pesante), ovvero riguardanti il ripristino o la sostituzione di elementi costitutivi dell’edificio oppure l’eliminazione, la modifica e l’inserimento di nuovi elementi architettonici e impianti, l’adeguamento dei parapetti per finestre, balconi e terrazze è obbligatoria.
Nel caso di interventi manutenzione straordinaria, resta a discrezione del Condominio, la possibilità di decidere se intervenire o meno sui parapetti con adeguamento alla normativa vigente, o lasciarli nello stato risultante dal titolo edilizio originario.
...
segue
Certifico Srl - IT | Rev. 1.0 2024
©Copia autorizzata Abbonati
Matrice Revisioni
| Rev. | Data | Oggetto | Autore |
| 1.0 | 28.02.2024 | - Inserito paragrafo 9 - Adeguamento parapetti non conformi; - Inseriti link normativi; - Aggiornato riferimento norma UNI EN 13374:2019 |
Certifico Srl |
| 0.0 | 29.08.2018 | --- | Certifico Srl |
Collegati
DM 14 giugno 1989 n. 236
D.Lgs. 81/2008 Testo Unico Salute e Sicurezza Lavoro
EN ISO 14122-3:2010 Accesso macchine: scale e parapetti
Glossario unico | Edilizia libera
| Descrizione | Livello | Dimensione | Downloads | |
|---|---|---|---|---|
| Parapetti permanenti - Requisiti dimensionali geometrici Rev. 1.0 2024.pdf Certifico Srl - Rev. 1.0 2024 |
314 kB | 530 | ||
| Parapetti permanenti - Requisiti dimensionali geometrici Rev. 00 2018.pdf Certifico S.r.l. Rev. 00 2018 |
331 kB | 831 |
Tags: Sicurezza lavoro Rischio cadute dall'alto Abbonati Sicurezza






















